398 NE 5th Street, Miami, FL 33132
CondoBlackBook.com and Blackbook Properties are not responsible for the accuracy of the The Elser Hotel & Residences condos in Downtown Miami Miami information listed above. The data relating to real estate for sale on this web page comes in part from the Internet Data Exchange Program and the South East Florida Regional MLS and is provided here for consumers personal, non-commercial use, It may not be used for any purpose other than to identify prospective Miami Beach area condos consumers may be interested in purchasing. Data provided is deemed reliable but not guaranteed. Listing provided by Fortune International Realty.

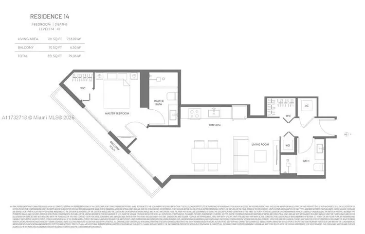
Floor plan disclaimer: condoblackbook.com uses an automated floor plan condo matching system to match condos to the original developer floor plans. This plan has not been posted by or verified with the owner or listing broker. Floor plans are for general information and convenience only and cannot be relied upon for purchase or rental without independent third party verification. Most floor plans represent the original developer plans and may have since been modified.
Preconstruction
Downtown Miami
Delano Residences & Hotel: Miami’s Iconic Brand Debuts with Downtown’s Second Supertall
Since it first opened its doors on South Beach in 1947, the Delano became a cultural phenomenon that helped define Miami Beach’s glamor and global cachet. Designed in the iconic Art Deco style and later reimagined by Philippe Starck as a playground for celebrities, tastemakers, and international jet-setters, the Delano wasn’t just a place to stay — it was a place to be seen, a creative canvas of bold design, vibrant pool culture, and effortless sophistication that became synonymous with Miami’s rise as a must‑visit lifestyle capital.
video
Downtown Miami
Edgewater
Video: Why an Award-Winning NYC Architect Chose Miami Over Other Big U.S. Cities
If you’ve ever considered moving to Miami from NYC, or from any other major U.S. city, you’ll want to watch this unfiltered conversation.
Real Estate News
Neighborhood Comparisons
Downtown Miami
Edgewater
Edgewater vs Downtown Miami: Which Miami Neighborhood Is Right for You?
Few Miami neighborhoods have evolved as distinctively as Downtown and Edgewater in recent years. Once quieter residential pockets, they have transformed into two of Miami’s most sought-after addresses, offering new levels of luxury living, culture, and waterfront access just minutes apart. Downtown is pulsing with momentum, where soaring new residential towers, landmark institutions like the Pérez Art Museum Miami (PAMM) and Frost Science Museum, and waterfront parks such as Bayfront Park shape the city's most cosmopolitan urban core. Edgewater is an elegant bayfront enclave offering sleek, design-forward high-rises, spectacular water views, and a more serene pace, all within easy reach of the action. The two neighborhoods offer prime locations, water views, lifestyle perks and a wave of exciting new developments. So which is better, Edgewater or Downtown Miami? Here’s our insider take to help you decide which of these two top Miami neighborhoods matches your lifestyle better. ## — The Lifestyle Edgewater, Miami’s evolution into a premier bayfront enclave with almost a cult following has taken a refined and curated approach: rather than bursting with nightlife or excessive retail, it has risen gracefully, growing taller and more boutique. Meanwhile, Downtown has undergone a remarkable transformation from a primarily nine-to-five business hub to a thriving, around-the-clock destination for luxury living, global finance and exciting retail, dining and entertainment. Edgewater is a true waterfront neighborhood: family-friendly, residential and perched directly on Biscayne Bay. Its prized green space is Margaret Pace Park, an 8-acre bayfront oasis with panoramic views. These are some of the reasons that make Edgewater the ultimate choice for families living in Miami. Set on the eastern side of Biscayne Boulevard, it also sees much less tourism while offering effortless access to everything that makes Miami exceptional, from the cultural energy of Downtown to the sun-soaked shores of South Beach. Plus, Wynwood, the Design District and Brickell are all within easy reach. In comparison, those craving a more urban feel may find Downtown Miami more compelling, as it puts you right in the thick of things, including a slew of trendy restaurants, shops, and the city’s museums. The neighborhood also offers excellent connectivity, with many transportation options. (To be fair, living on the south end of Edgewater also makes these arts and culture destinations within walking distance or one or two stops on the Metromover.) Downtown is rapidly becoming a more accessible and future-ready area. Watch our exclusive interview with Miami DDA’s CEO, Christina Crespi, to gain insights on all the behind-the-scenes action that’s making Downtown the most thrilling live-work-play-invest destination in Miami. ## — Getting Around ###### MiamiCentral - Brightline stop While Edgewater is tucked away on the eastern side of Biscayne Boulevard, it’s still close enough to walk or bike to many of Miami’s most desirable locations, such as the Perez Art and Frost Science Museums, Bayfront Park, the Kaseya Center (formerly American Airlines Arena), and is just a short Uber ride away from the Wynwood Arts District, Midtown and the Design District. Edgewater is also very close to the Omni Metromover stop on 15th Street in the Arts & Entertainment District on and has many free Miami trolley routes. But if you prefer a totally car-free lifestyle, Downtown is hard to beat. It is home to the MiamiCentral station, a key transportation hub where the Brightline, Metrorail, and Metromover converge, taking you to several top destinations including the airport. Miami's Tri-Rail commuter rounds out these options so that you can easily access many of Miami's top neighborhoods, the Tri-County area, like Fort Lauderdale and Palm Beach, and eventually all the way to Orlando. One of the greatest advantages of living in Downtown Miami is its walkability and urban neighborhood flavor. Both neighborhoods are considered a walker’s paradise, with walkscores of 91 for Downtown and an even higher 95 for Edgewater, Miami. Exploring a vehicle-free lifestyle in Miami? We break down the top Miami neighborhoods where you can live without a car. ## — The Work-Life Balance Edgewater is essentially a residential district, while Downtown is becoming one of Miami’s commercial hubs, home to many corporate headquarters, as well as Miami’s Government Center, courthouses, libraries and a Miami Dade Community College Campus. Its proximity to Brickell also makes Downtown a smart choice for professionals, potentially cutting down commute times if you’re working in the financial district. If living close to work is a top priority for you, Downtown might be a better bet; but if you prefer the idea of leaving the buzzing financial district behind and escaping to a quieter waterfront enclave only 10 minutes away, Edgewater may well provide that perfect balance. ## — Outdoor Living & Waterfronts When it comes to parks and greenspace, Edgewater has the edge: the entire neighborhood is centered around the lush and lively Margaret Pace Park. A favorite among families with children, fitness enthusiasts and dog lovers, the park provides two dog parks, basketball, volleyball and tennis courts, a scenic walking path, and direct access to the Bay for kayaking and paddleboarding. There's also a private marina next to the park. Downtown Miami, by comparison, is larger and home to two major parks: Bayfront Park, which has Bayside Marketplace, an amphitheater, and the Miami Skyviews Ferris Wheel; and Museum Park (also known as Maurice Ferre Park), situated next to Perez Art Museum Miami (PAMM) and the Frost Science Museum. Both are spacious, waterfront, and host regular community events, from yoga and fitness expos to concerts (including the Ultra EDM music festival) and marathons. The key difference is in the vibe: Margaret Pace Park feels like a true community space, steps from most Edgewater residences, with a tranquil pace amplified by direct waterfront views. Living here, you’ll surely see familiar faces here, neighbors and families. The park and bay views from Edgewater condo buildings are also incomparable. Downtown Miami’s parks are frequented by more tourists and visitors, and typically require a longer walk to get to unless you are living on Biscayne Boulevard. ## — Arts & Culture ###### by Robin Hill for Knight Foundation Downtown Miami holds within it the Downtown Arts District, or the Arts & Entertainment District, and is host to many cultural venues, such as the aforementioned Adrienne Arsht Center, the Ziff Opera House, the Perez Art Museum (PAMM), the Frost Science Museum and the Kaseya Center (where the Miami Heat play and major concerts happen), as well as a few alternative art spaces and galleries. In this sense, Downtown Miami takes the lead for art and cultural offerings. However, Edgewater makes up for this with its prime location and easy access to some of Miami’s best cultural destinations. Just a short drive away is the vibrant Wynwood Arts District, with not only its world-famous Wynwood Walls but some of the city’s best galleries as well, including The Margulies Collection. Additionally, the historic Design District also features the Miami Institute of Contemporary Art, and several ongoing art installations and exhibitions. Edgewater's proximity to fair sites during the annual Miami Art Week—including Art Miami—also make it the ideal location to be, and the nearby Moore Building and Institute of Contemporary Art (ICA) in the Design District make it more competitive with Downtown Miami when it comes to cultural access. Use our specialized search engine to discover the best condo and rental options in Edgewater and Downtown Miami. ## — Signature Flavors ###### by KLAW MIA Because Downtown Miami is a larger and busier neighborhood that caters to a bustling business lunch crowd, it naturally has a wider variety of eateries, making it a foodie’s paradise. Miami's urban core is filled with amazing dining options, including the many eateries located at Central Fare, the food hall at MiamiCentral, which serves everything from American comfort food to exotic international flavors. Another favorite food hall in Downtown is Julia & Henry’s on historic Flagler Street. Other popular spots in Downtown include CVI.CHE 105, known for its Japanese-Peruvian fare; Fratelli Milano, a standout for authentic Italian; and the Michelin-rated NIU Kitchen, for authentic Spanish cuisine. Fine dining options also are plentiful in Downtown Miami, with renowned spots like Zuma for Japanese-inspired dishes and Il Gabbiano for superb Italian. Not to be left out, living in Edgewater definitely offers you great dining options. Mignonette, for example, is famous for serving some of the best seafood and oysters around in a 1930s architectural gem; Amara at Paraiso offers a refined waterfront experience, and Klaw Miami delivers exceptional seafood in an iconic, historic setting. Paolo Fontanot’s authentic Italian bakery and cafe is a must-visit, being the only U.S. location outside of Italy. ## — The Shopping Edit ###### Brickell City Centre Living in either neighborhood also means you'll likely venture out to Wynwood and the Design District for even more world-class food options. If retail therapy is your thing, both Downtown Miami and Edgewater offer compelling options, each with its own character. Downtown Miami has a slight advantage, given that Brickell City Centre is just over the Miami River south of Downtown, offering international designer brands and a mix of fashion, tech and beauty stores, all anchored by a Saks Fifth Avenue. In the immediate neighborhood, you can stroll the shops at Bayside Marketplace, and find burgeoning boutiques in the historic—and under renovation—Flagler Street, home to art galleries and the oldest perfumery in Florida. For groceries, Whole Foods and Publix are your main stores. Comparatively, Edgewater provides easy access to the many unique shops and boutiques in Wynwood, Midtown and the Design District, where you can purchase anything from wearable art and collectables to designer kitchen and bath fixtures. Publix is your nearest grocery store, and a Whole Foods is set to open soon on Biscayne Boulevard. And you have a Target and Trader Joe’s in Midtown. ## — Architecture & Design Downtown Miami is one of the oldest areas of the city, with many pre-war buildings typical of large urban centers. Mixed in with some of the most beautiful architecture and historic landmarks, you'll find new modern high-rises, as well as a few lofts, both new and converted. Edgewater is a more newly developed area, with many luxury highrises, but retains some of its 1940s charm with scatterings of Florida-style bungalows, and a few historic buildings. The condo options in Edgewater will also offer you state-of-the art amenities, including spas, gyms, meditation areas, and sunrise and sunset pools. Downtown Miami’s Aston Martin Residences is one of the condos that are redefining luxury living through its extensive amenity offerings, such as an art gallery, full-service spa, virtual golf, infinity edge pool, rooftop helipad and super yacht marina. It’s also home to some of the city’s most iconic architectural landmarks, including the Herzog & de Meuron-designed PAMM and the last building designed by the late Zaha Hadid, the uber luxurious One Thousand Museum. Paramount Miami Worldcenter is another complex of buildings in the Entertainment District of Downtown that’s catering to lifestyle amenities. This development offers residents a sporting complex, including running tracks, a soccer field, boxing studio, multiple pool and yoga decks, as well as music recording studios, meditation centers, spas and beauty salons, and along with the Legacy Hotel and Residences, a state-of-the-art wellness center and clinic. In Edgewater, Elysee Miami delivers a health club with a resort-style lap pool, a spa, a blow dry bar, a yoga studio and a waterfront fitness center. The 30th-floor sky lounge is home to a grand salon with 360-degree views, a grand dining room with a wine cellar, a library, a private theater, a chef-grade commercial kitchen, and a teen lounge. Contact us for more customized condo suggestions in either neighborhood, or use our personalized condo search tool. ## — Prices & Perspective Both Edgewater and Downtown Miami boast beautiful new high-rise condo options, with varying prices per square foot. Both neighborhoods have seen their prices increase of the last year, offering a good investment as well. As of the date of this posting, the average price per square foot in Edgewater is around $340 and residential units lists for an average price of $800,000, but can go up to tens of millions for penthouse units in the top buildings, like Elysee and Missoni Baia. In Downtown Miami, the median listing per square foot is about $489, and the average listing price for a condo is about $750,000\. Penthouses in Aston Martin Residences or One Thousand Museum will be about $30,000,000 up to $60,000,000. If you are considering renting before buying in either neighborhood, you can also find excellent apartments or condos for rent in both Edgewater and Downtown Miami. ## — Edgewater vs Downtown Miami: Which Neighborhood is Better? If you’re looking for a quiet waterfront living experience with minimal traffic, abundant greenspace, and little to no tourism, where you can enjoy the outdoors and the comfort of seeing your neighbors’ familiar faces each day, Edgewater may be the perfect fit. If, however, you still have a wild streak and want more of an urban feel, enjoy eclectic dining, mingling with visitors from around the world, and prefer a car-free lifestyle, or are looking for a part-time or investment property, Downtown Miami could be your ideal location. If you’re interested in more neighborhood comparisons, explore one of our expert Miami neighborhood guides below: * Edgewater vs South Beach * South Beach vs Miami Beach * The Miami Beaches: South vs Mid-Beach vs North Beach * Brickell vs South Beach * Brickell vs Brickell Key * Miami Beach vs Fort Lauderdale Need help choosing the perfect Miami neighborhood? Speak with our local real estate experts today. Whether you're relocating, investing, or looking for a second home, we'll guide you to the right area—and the perfect property. Just call, text or email us now.